Nie opisywałem nic w bieżącym wątku przez ok. półtora miesiąca, co nie znaczy, że nic w nim nie robiłem.
Mianowicie:
- zainstalowałem 30-sto dniową wersję AutoCAD 2008. Zupełnie inaczej - czytaj lepiej - pracuje się w nim niż w AutoCAD 2000/2002. Ma kilka przydatnych funkcji w pasku narzędzi "Modelowanie"
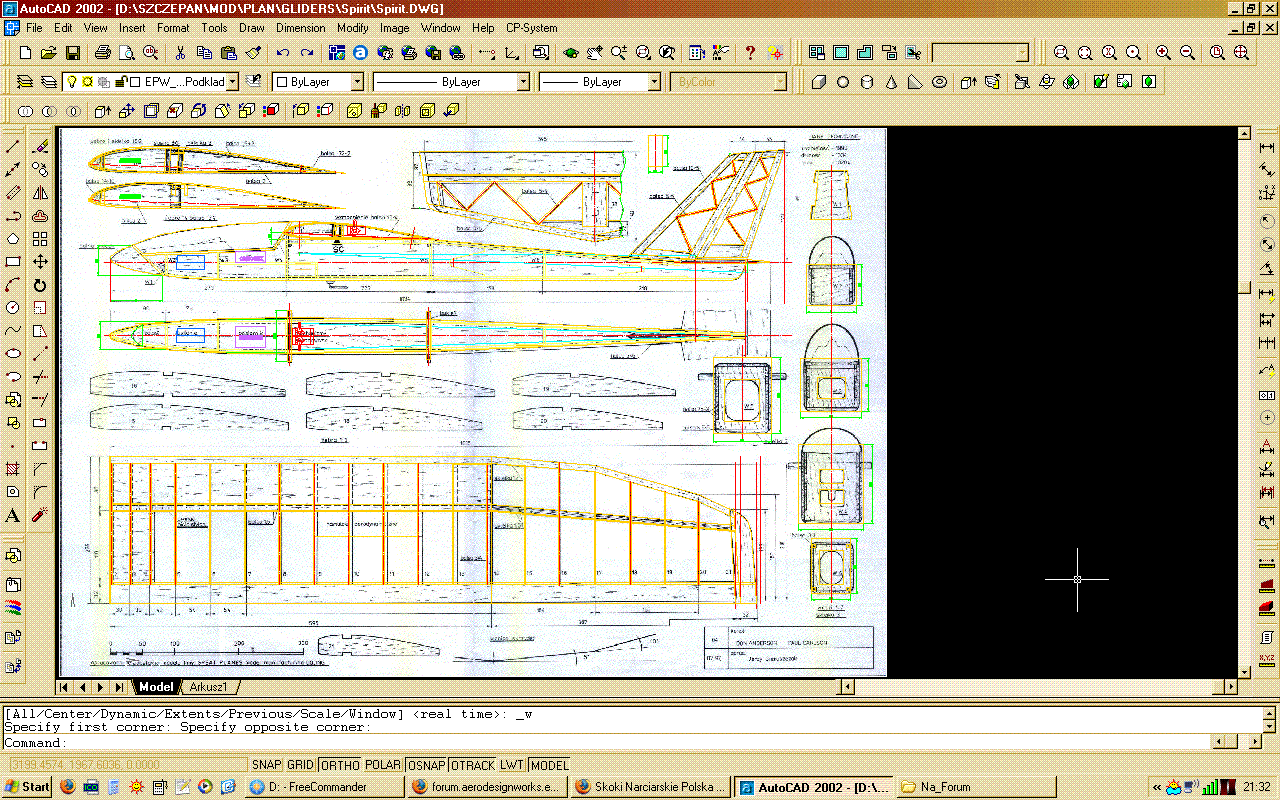
- na dzień dzisiejszy stopień "rozgrzebania" Spirita 2M wygląda następująco:
Załącznik:
Spirit_13_11_2011.JPG [ 194.37 KiB | Przeglądany 8290 razy ]
Czyli jak widać - rozrysowałem, myślę, że dokładnie, ustrzeżenie poziome i pionowe, zacząłem walkę z elementami kadłuba - dobór kształtu i położenia wpustów/wypustów montażowych ścian bocznych, spodu i grzbietu kadłuba, opracowuję kształt poprzecznych do osi kadłuba wręg wewnętrznych, a także półki pod serwomechanizmy, odbiornik i akumulatory, półki pod kabinkę, rozrysowuję żebra - o różnej cięciwie, dobieram wysokości pasów skrzynki dźwigara, no i myślę nad wieloma innymi rzeczami

;
- w sposób "szybki" i mało precyzyjny powyciągałem elementy ustrzeżenia (takie "pierwsze przybliżenie") - na grubość 6mm:
Załącznik:
Ustrzezenie_3D_1.JPG [ 161.64 KiB | Przeglądany 8290 razy ]
- także w sposób "szybki" - wykonałem pierwsze, prowizoryczne przybliżenie kształtu kadłuba - wykonane za pomocą opcji "Wyciągnij" z paska "Modelowanie" - dla profilu z widoku z oku oraz z widoku z góry, a następnie za pomocą opcji "Iloczyn" (iloczyn Boole'a) z tego samego paska uzyskałem bryłę kadłuba. Niestety jest ona dość "kanciasta". Nie zaokrąglałem ktawędzi dziba kadłuba, gdyż zaokrąglenie takie będzie miało w praktyce zmienny promień (zbieżny do wierzchołka dzioba):
Załącznik:
Ustrzezenie+kadłub_3D_1.JPG [ 139.51 KiB | Przeglądany 8290 razy ]
- przygotowałem ustrzeżenie - w postaci układanki - elementów przeznaczonych do montażu - za pomocą opcji "Wyciągnij" z paska "Modelowanie" - na grubość 6mm (zastanawiam się czy takie ustrzeżenie nie będzie za ciężkie - czy nie lepsze było by ustrzeżenie 4mm):
Załącznik:
Ustrzezenie_ukladanka_3D.JPG [ 155.74 KiB | Przeglądany 8290 razy ]
- to samo ustrzeżenie - w postaci układanki zmontowanej:
Załącznik:
Ustrzezenie_ukladanka_zlozona_3D.JPG [ 163.9 KiB | Przeglądany 8290 razy ]
- ustrzeżenie - w postaci układanki złożonej + "szybki" prowizoryczny kadłub:
Załącznik:
Ustrzezenie_ukladanka+kadłub_3D_1.JPG [ 123.75 KiB | Przeglądany 8290 razy ]
Na razie tyle - "walka" z kadłubem trwa

.